3 BHK Apartment Plans With Ground Floor Shops Drawing
Description
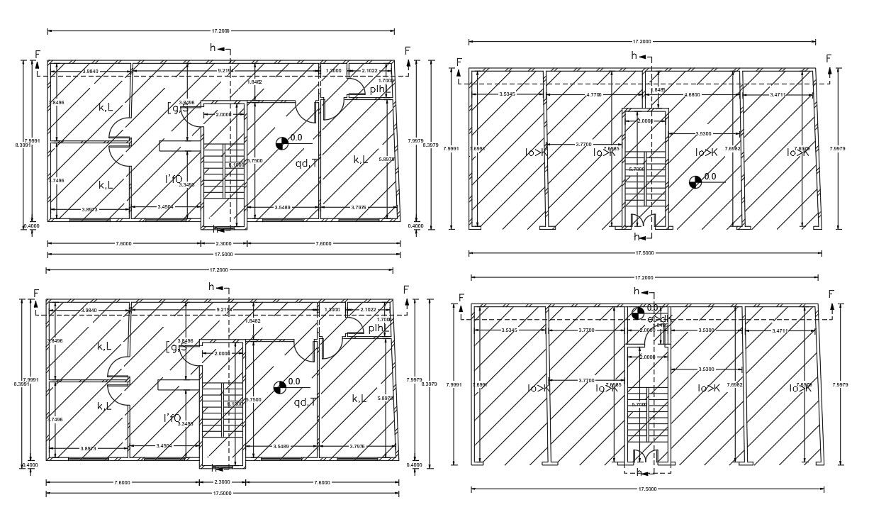
3 BHK apartment house floor plan and shops on the ground floor AutoCAD drawing includes 3 level floor detail with all dimension detail. download DWG file of the apartment with shop floor plan design.
Uploaded by:
