2000 SQFT House Construction Plan AuroCAD Drawing
Description
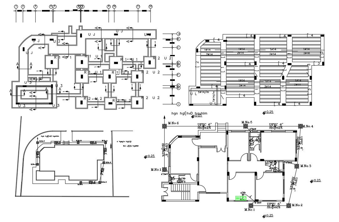
32 feet by 62 feet house floor plan AutoCAD construction working drawing includes a foundation plan with excavation detail, column layout plan and RCC slab bar structure design. download DWG file of 2000 square feet house plan and get more detail drainage line direct connect to chamber box.
Uploaded by:

