Huge House Two Story Building Elevations And Sections CAD File
Description
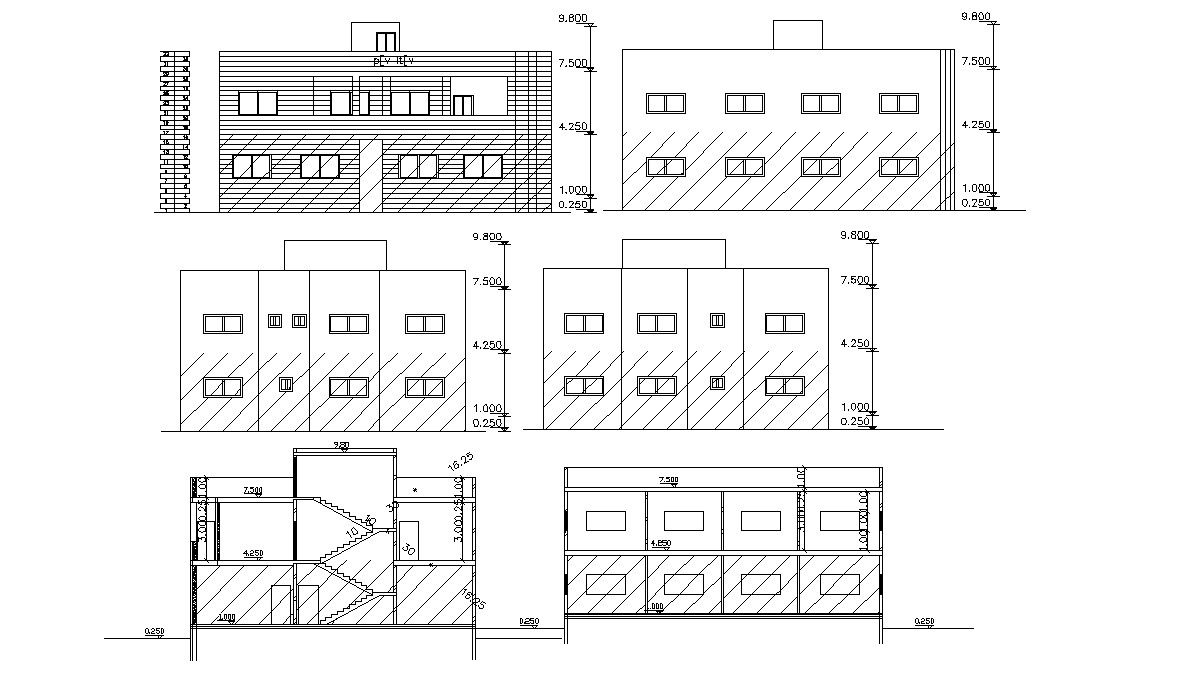
four side elevations and sections of residential building design with floor levels dimension details, hatching design in elevation, stair section, doors and windows marking in it. and other more details related to drawing free download this drawing.
Uploaded by:
Rashmi
Solanki
