5 Bedroom House Plan AutoCAD Drawing
Description
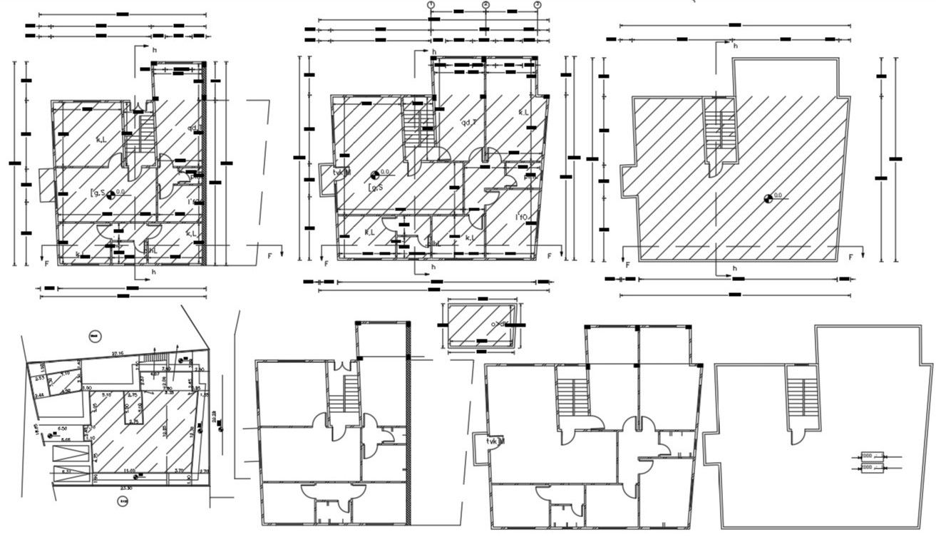
the architecture AutoCAD drawing of the ground floor plan, first-floor plan, and terrace design with all dimension detail. this 5 bedroom house plan with two car parking spaces to accommodate with compound boundary wall design. download DWG file of 5 BHK house plan drawing.
Uploaded by:

