2 BHK apartment Construction Working Plan DWG File
Description
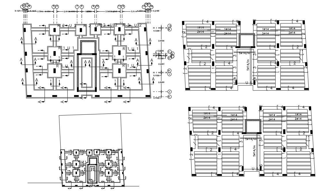
The 2 BHK apartment project construction working plan drawing includes a foundation plan, excavation detail, column layout plan, and RCC slab bar structure design. download AutoCAD drawing of apartment working plan design.
Uploaded by:
