Two Elevations And Section Of House Design Autocad Drawing
Description
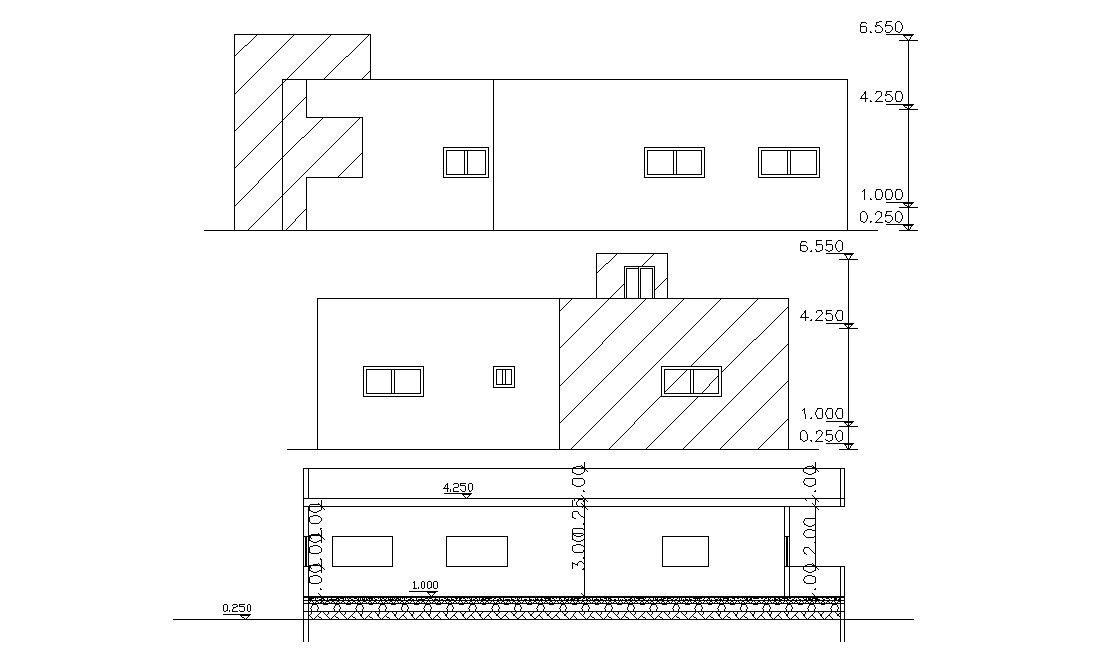
residential building elevations and a section of the small house design. with floor levels dimension details, some texting, and doors -windows marking in the plan. free download this drawing and use it in related projects.
Uploaded by:
Rashmi
Solanki

