Residential Floors Plan With Terrace Floor AutoCad Drawing
Description
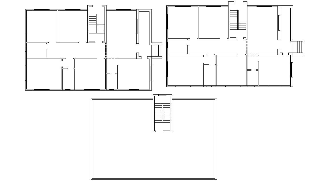
three plans of residential building design, it's a basic space planning of bungalow design with terrace floor, in this drawing, added three bedrooms, kitchen, drawing room, common and attached toilets, doors and windows marking in the plan, and other more details.
Uploaded by:
Rashmi
Solanki

