Small Four Side elevations And sections Of House Design CAD
Description
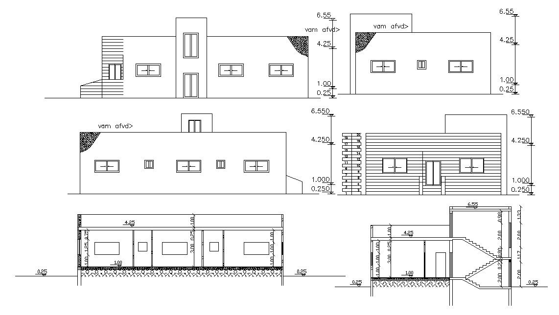
the architectural residential house elevations and sections with floor levels dimension details, some hatching design in elevations, standard stair section, flooring material details and much more other details in this drawing.
Uploaded by:
Rashmi
Solanki

