Column Foundation And Slab Design Structural Drawing DWG
Description
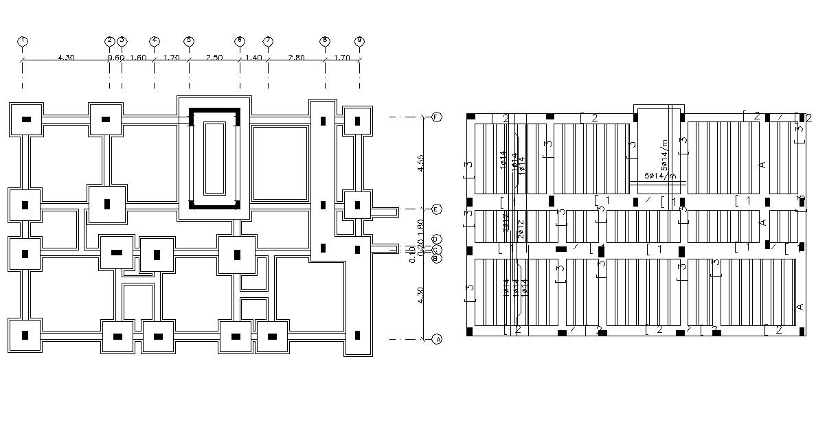
structural column foundation details with centerline plan, working drawing dimension details, slab design with beam and column marking in it. shear wall and other more details related to structural.
Uploaded by:
Rashmi
Solanki

