Floor Plans Of Huge Bungalow With Working Dimension DWG File
Description
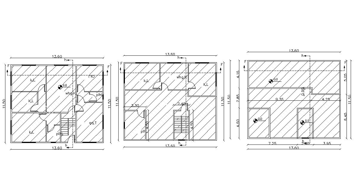
architectural planning of lavish bungalow design with working drawing dimension details and terrace floor plan, in this planning added stair with foyer, drawing room, kitchen, bedrooms, doors, and windows marking and other more details.
Uploaded by:
Rashmi
Solanki

