Building Site Plan And Ground Floor Design AutoCAD File
Description
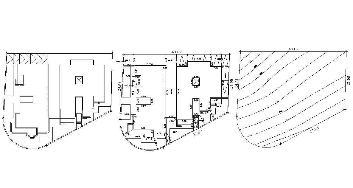
download this drawing which is related to survey plotting design with contour, ground floor plan with building demarcation details, car parking in the margin, peripheral dimension details, terrace floor plan and other more details related to drawing. free download this drawing and use it in a related project.
Uploaded by:
Rashmi
Solanki

