Working Drawing Of Parking Layout Design AutoCAD File
Description
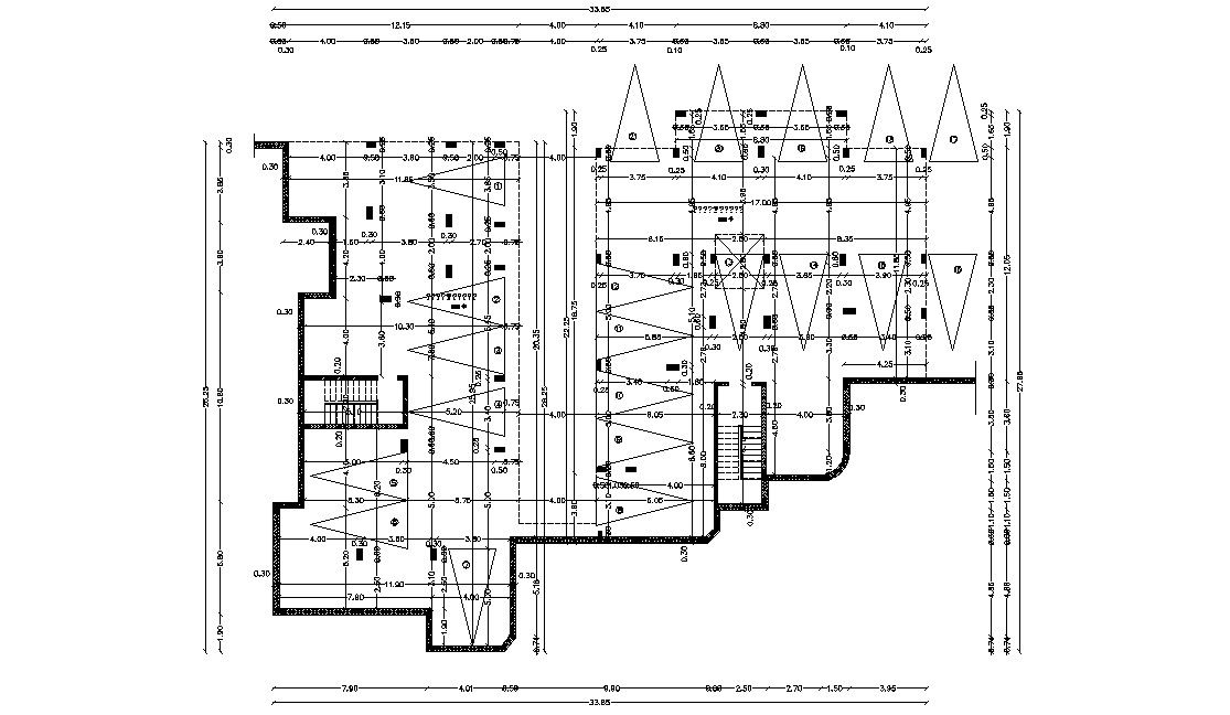
the master plan of basement parking layout design with retaining wall details, internal and working drawing dimension details, car parking and driveway design, download this drawing and use in any relevant projects.
Uploaded by:
Rashmi
Solanki

