1500 Sq Ft Apartment House Electrical Layout Plan
Description
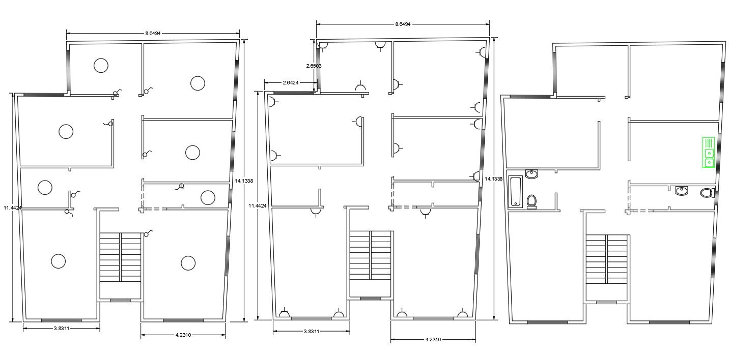
2d CAD drawing of 180 square yard plot size apartment house plan design includes electrical layout plan that shows the ceiling light point and switchboard plugging layout plan. download apartment house electrical plan with sanitary ware detail AutoCAD format DWG file.
Uploaded by:

