2 BHK Joint House Ground Floor Plan Design DWG File
Description
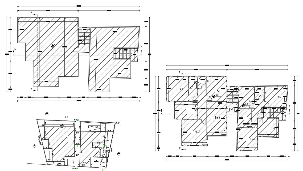
The architecture joint house-ground floor plan design includes 2 bedrooms, kitchen, drawing room, and living area with dimension detail in meter format. also has a site plot plan with land survey detail. download DWG file of joint house plan design.
Uploaded by:

