House Plan With Power Supply Diagram DWG File
Description
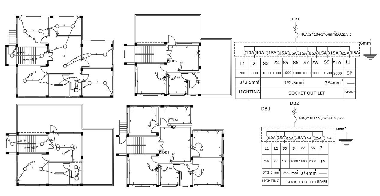
House electrical layout plan AutoCAD drawing with ceiling light point plan with electrical distribution board details and meter wiring diagram CAD drawing shows types of circuit, socket, size of wiring and socket outlet. download DWG file of house electrical plan drawing.
Uploaded by:

