House Electrical And Plumbing Layout Plan AutoCAD File
Description
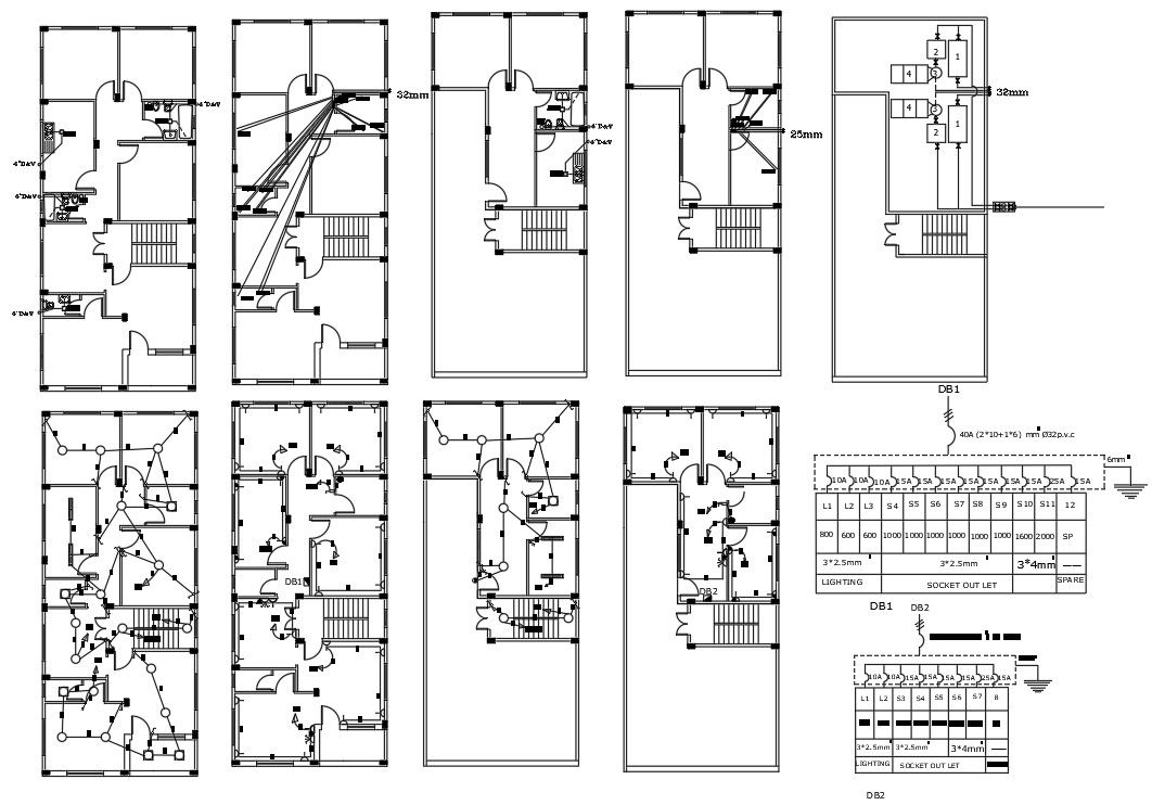
The architecture residence house electrical layout plan that shows a ceiling light point, switchboard plugging and wiring plan. also has plumbing layout plan includes water pipeline, sanitary ware detail and drainage line plan. download DWG file of house plan with power supply chain diagram that shows circuit and socket-outlet.
Uploaded by:

