65 By 72 Feet Apartment Construction Plan DWG File
Description
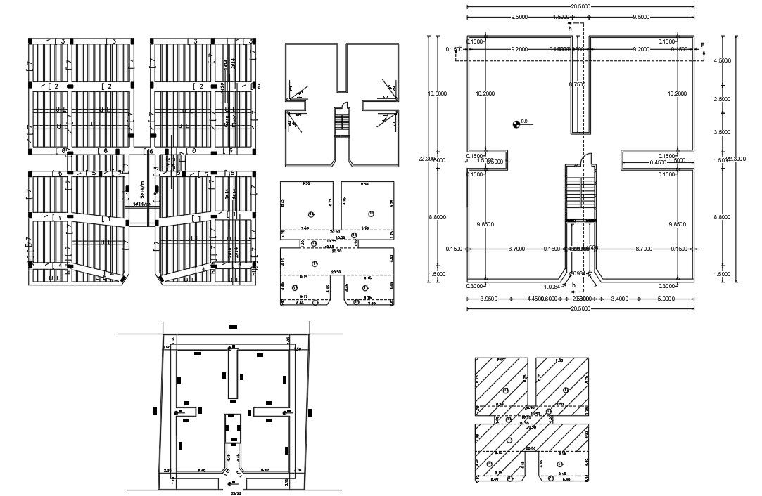
The architecture AutoCAD drawing apartment cluster working plan design includes reinforcement slab bar structure design, column layout plan and terrace plan design. download DWG file of 65' X 72' apartment house plan drawing.
Uploaded by:

