House Building Design Plan With Terrace Floor CAD File
Description
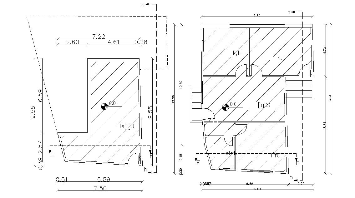
two plans of residential bungalow floors plan with basic dimension detail, some hatching design in plan, in this planning added many rooms, wash yard, terrace floor plan and section line on the plan.
Uploaded by:
Rashmi
Solanki

