Download Residential Floor Plans With Working Drawing DWG File
Description
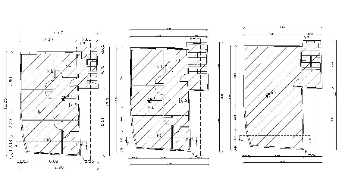
this is the planning of modern architectural bungalow design with working drawing dimension details, section line on the plan, some hatching design in plan.in this drawing added stairs with foyer, drawing room, bedrooms, kitchen, terrace floor plan, and other more details in this drawing.
Uploaded by:
Rashmi
Solanki

