Many Floor Plan Of House Building Design Autocad File
Description
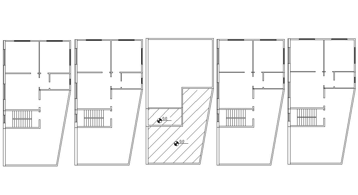
four floors plan in architectural residential building design with basic line space planning, in this drawing, added drawing room, kitchen, bedrooms, toilets, stairs and other more functions related to house.free download this DWG file.
Uploaded by:
Rashmi
Solanki

