2D Cad Drawing Of Big House Planning With Working Dimension
Description
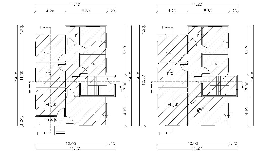
download this drawing which is related to huge residential bungalow design with working drawing dimension details, some hatching design in plan, section line on the plan, doors, and windows marking in the plan, in this planning added main foyer, drawing room, kitchen, bedrooms, stair with foyer and other more functions.
Uploaded by:
Rashmi
Solanki
