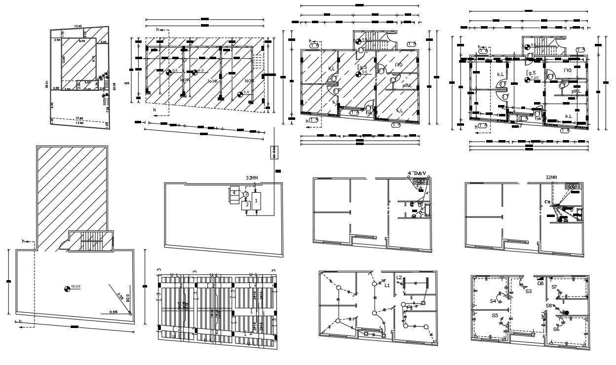
13 By 40 Feet House Plans Drawing AutoCAD File
Description
ground floor shop and top floor 2 bedroom house apartment plan AutoCAD drawing includes electrical layout plan and sanitary ware detail with construction working RCC slab bar structure design and column layout plan. download DWG file of complete house apartment plan.
Uploaded by:

