Shop With House Working Floor Plan Drawing

Shop With House Working Floor Plan Drawing
Profile

Uploaded by:

Komal

Description
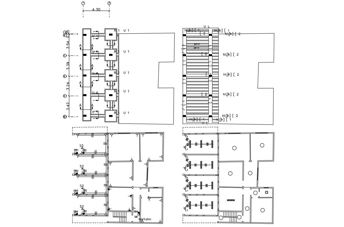
Download free DWG file of front side shop and backside residence house plan AutoCAD drawing includes electrical layout plan and foundation plan with RCC slab bar structure design.
Profile

Uploaded by:

Komal

find Latest

Related Files

WhatsApp Chat