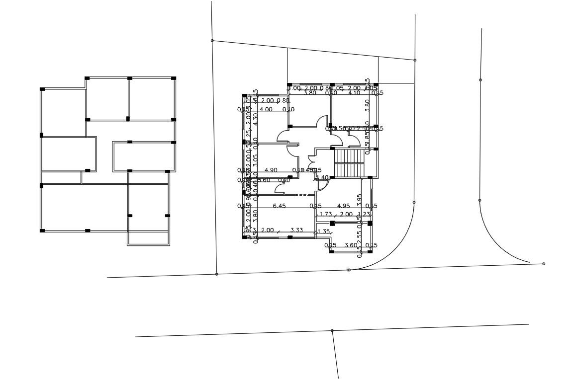
House Working Plan Design AutoCAD File
Description
AutoCAD drawing of an architectural working plan of residential house design includes 3 bedrooms, kitchen drawing room and living area with structural column layout plan design. download DWG file of the house construction plan and this drawing will be helpfull to civil engineer for the guidance of how to begin the construction building.
Uploaded by:

