Two Floors Plan Of Residential Building With Dimension DWG File
Description
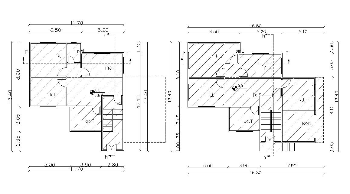
architecture planning of residential bungalow design with working drawing dimension details, this is the modern house planning design, in this drawing stair with foyer, drawing room, kitchen, bedrooms. section line on the plan, some texting details, and other more functions in it.
Uploaded by:
Rashmi
Solanki

