55 x 42 Feet Huge Bungalow Planning With Dimension Dwg File
Description
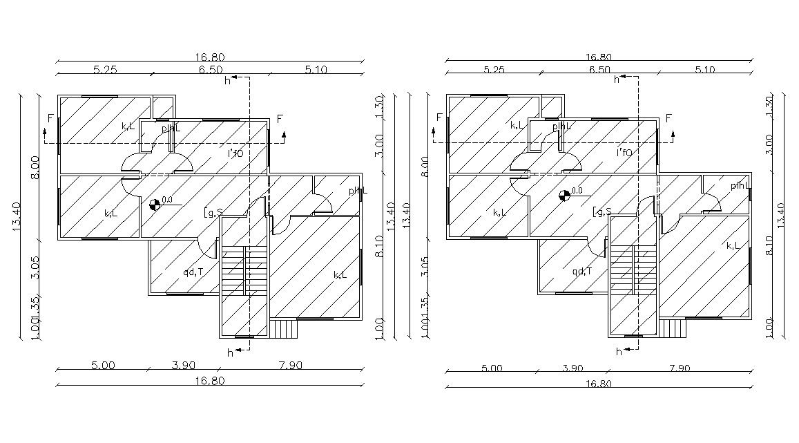
download this drawing which is related to good residentials architectural bungalow design with working drawing dimension details, section line on the plan, doors, and windows marking in the plan, this is the modern style plan.
Uploaded by:
Rashmi
Solanki

