30' X 36' House Plan AutoCAD File
Description
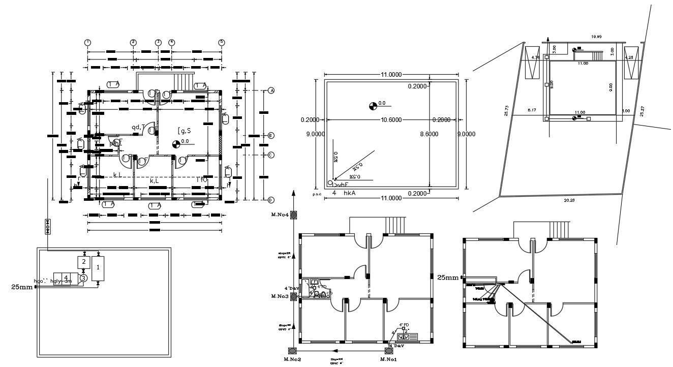
Architecture House floor plan AutoCAD drawing includes 2 bedrooms, a kitchen, and a drawing-room. The ground floor has a parking space to accommodate 2 big cars with compound wall design. download DWG file house plan with plumbing layout and sanitary ware detail.
Uploaded by:
