Download House Modern Elevations And Section Autocad File
Description
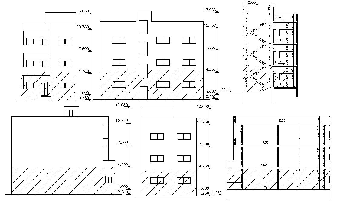
this is the drawing of residential apartment building design with two sections also added floor levels dimension details, some hatching design in elevation, doors, and windows marking in it. standard stair sections and other more details.
Uploaded by:
Rashmi
Solanki

