32' X 42' House Plan Design DWG File
Description
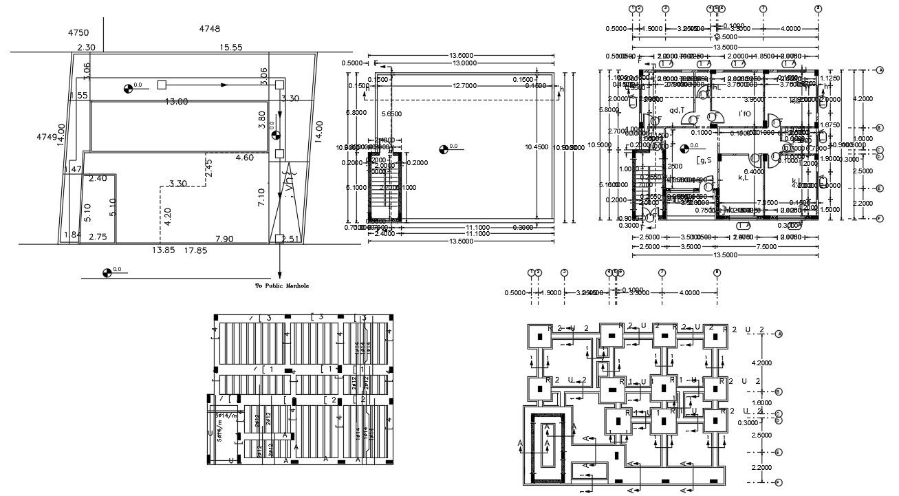
The architecture ground floor with terrace plan design AutoCAD drawing shows the best possible arrangement of 3 bedrooms, modular kitchen, drawing room, 2 living lounge and staircase detail. download DWG file of 1350 Sq Ft house plan drawing with foundation plan and slab bar design.
Uploaded by:
