42 Feet By 32 Feet House Electrical and Plumbing Plan
Description
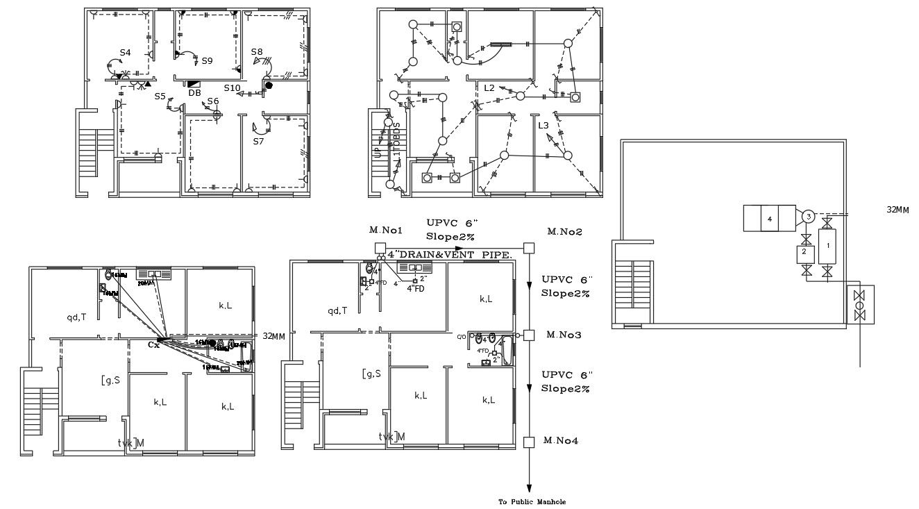
32 by 42 feet house electrical layout plan includes ceiling light point and plumbing plan that shows drainage pile line which is directly connected to chamber box and after going to public manhole. download DWG file of house plan drawing and use this idea for CAD presentation.
Uploaded by:

