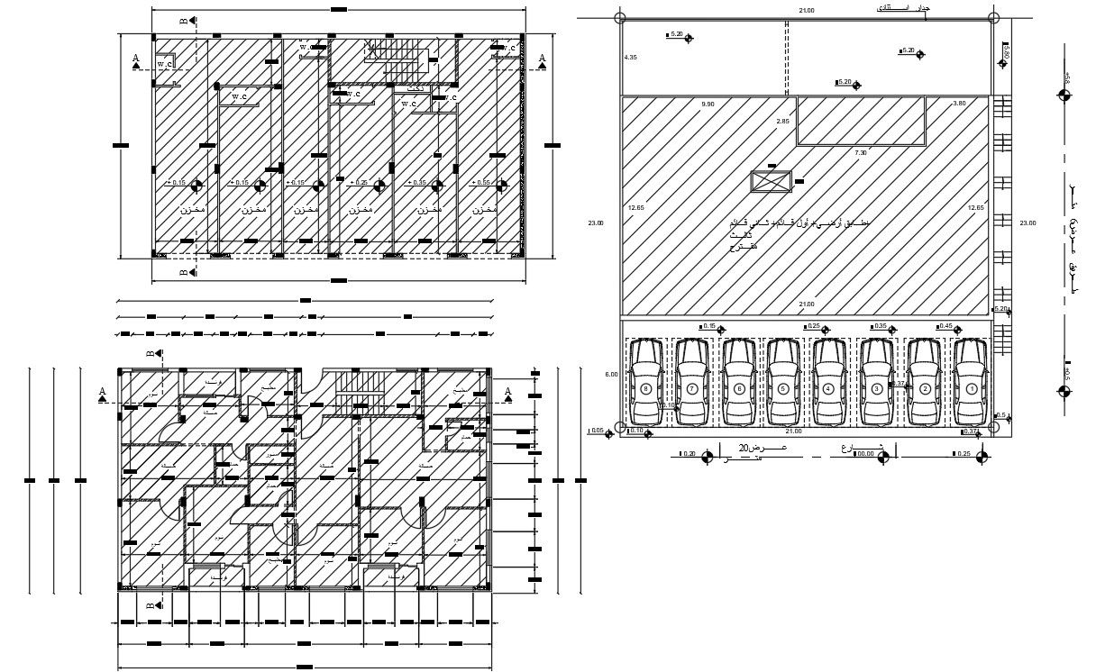
Apartment House And Ground Floor On Commercial Shops
Description
The architecture apartment house floor plan and ground floor on a commercial shop with the car parking lot with dimension detail in meter format. download apartment with shop plan and column layout plan design.
Uploaded by:

