2 Bedroom House Electrical And Plumbing Plan DWG File
Description
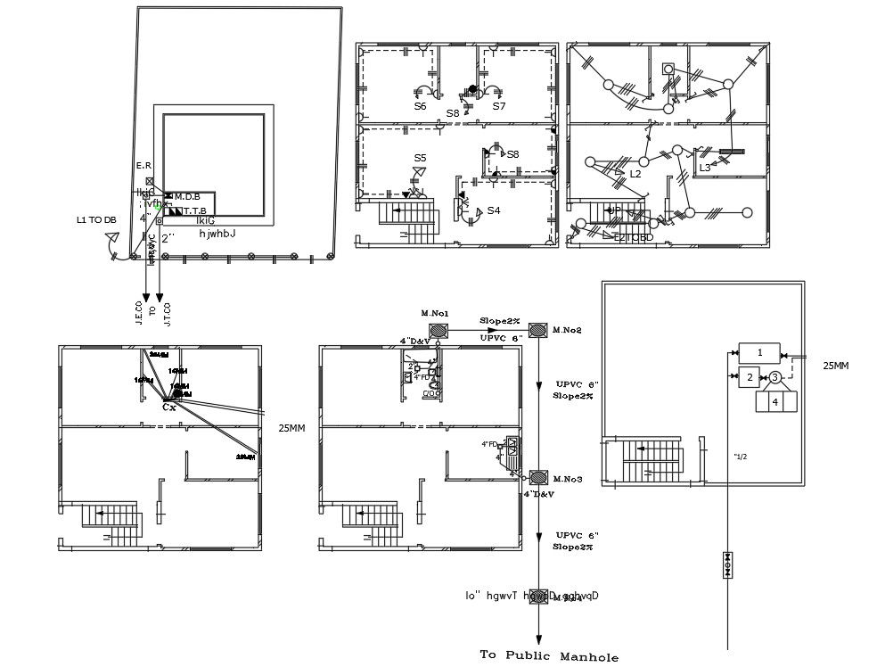
2d CAd drawing of 2 BHK residence house-ground floor plan design includes electrical layout and plumbing plan that shows water pipeline and drainage line which is directly connected chamber box that goes into a public manhole. download DWG file of house plumbing plan with sanitary ware detail.
Uploaded by:

