22' X 36' North Facing House Plan AutoCAD File
Description
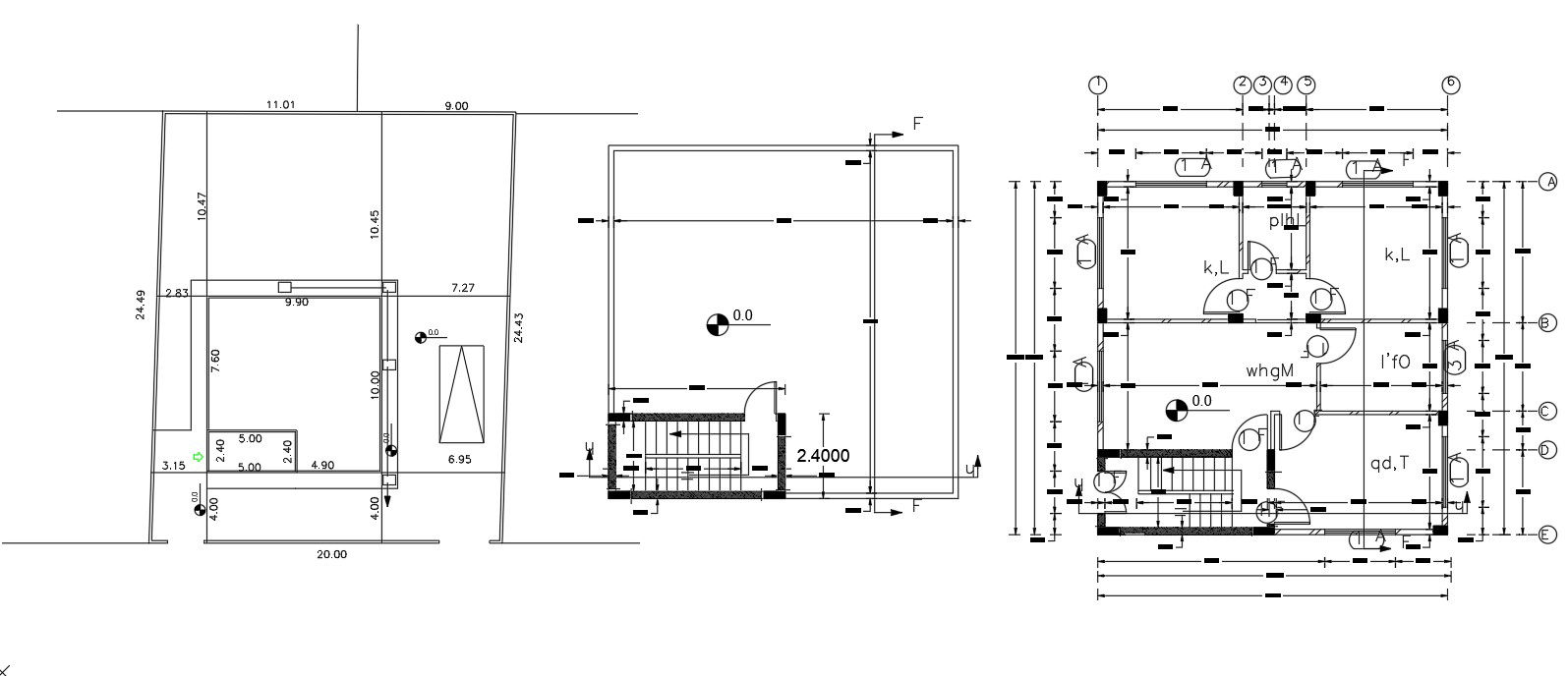
The architect House north facing the ground floor and terrace plan design includes 2 bedrooms, kitchen, drawing and living room with dimension detail. The ground floor has a parking space to accommodate 1 big car and compound wall design. download DWG file of master house plan drawing.
Uploaded by:
