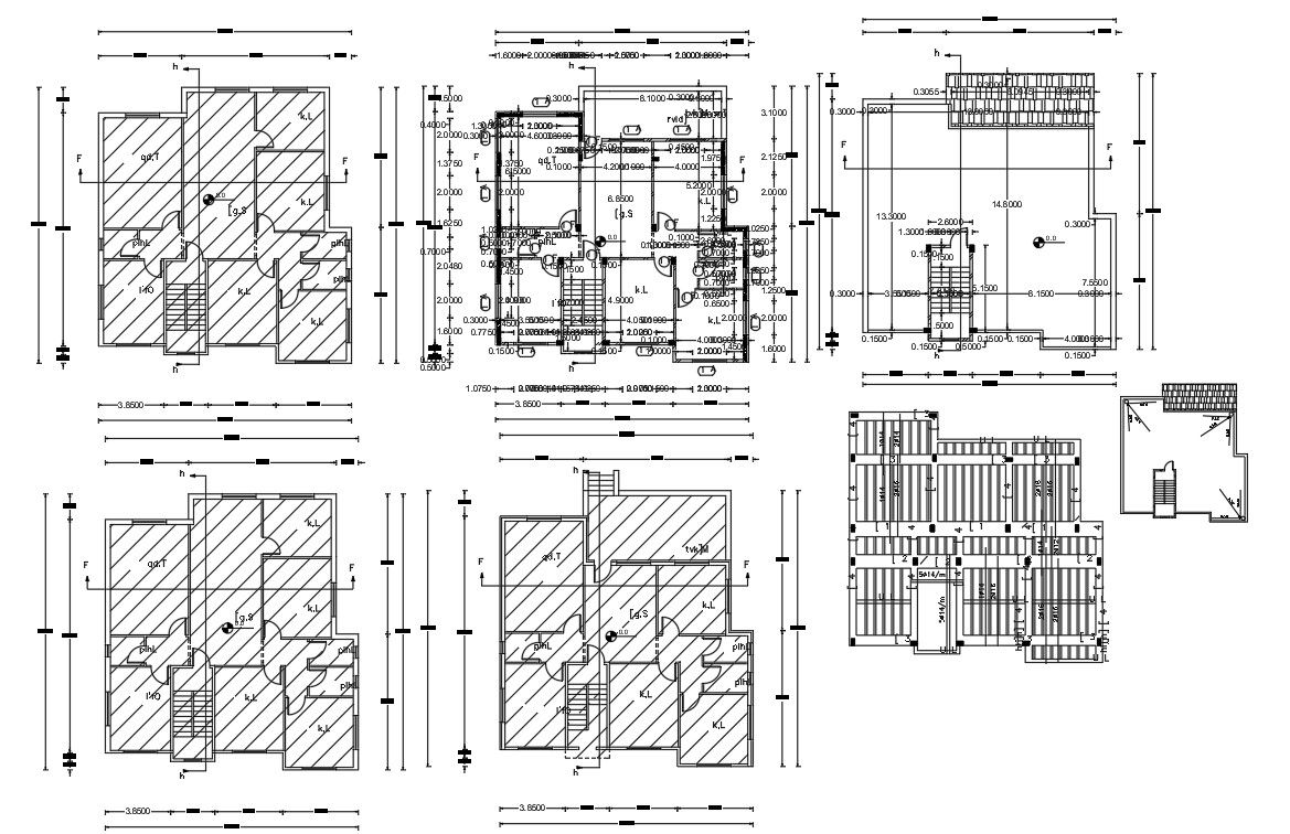
2 Storey House Floor Plan AutoCAD Drawing
Description
AutoCAD house architecture ground floor and first-floor plan design includes a spacious 7 bedrooms, drawing, kitchen, dining area and living room with all dimension detail. also has the stairs come up on the terrace and the main entry porch sloping roof design. download house with working plan design DWG file.
Uploaded by:

