AutoCAD House Plan With Power Supply Diagram
Description
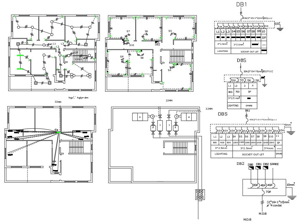
2d CAD drawing of house electrical layout plan that shows ceiling light point plan wiring plan with electrical distribution board details and power supply diagram description includes types of circuit, socket, size of wiring and socket outlet. Download house electrical plan DWG file.
Uploaded by:

