50' X 55' House Plan Architecture AutoCAD Drawing
Description
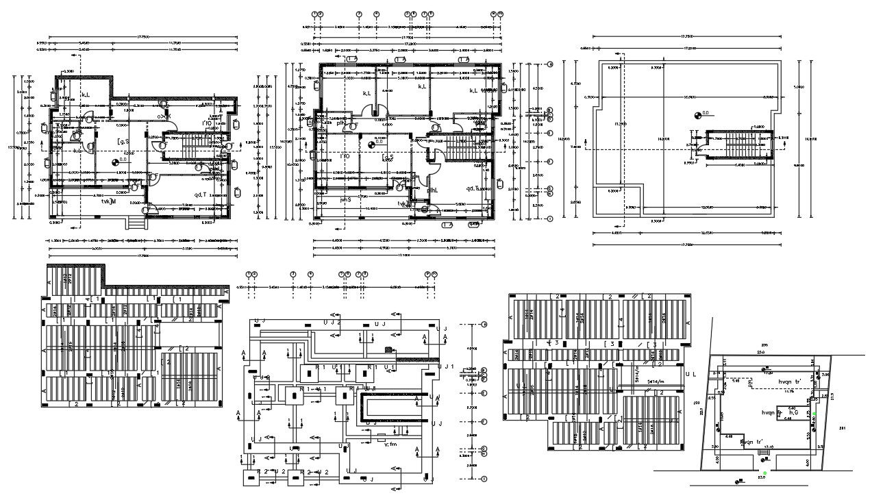
the architecture AutoCAD drawing of the ground floor and first-floor plan design of 5 BHK house design with dimension detail. also has the stairs come up on the terrace plan. download 2750 Sq Ft plot size AutoCAD house plan and get more detail of the construction foundation plan, slab bar, and master plan design with compound boundary wall design.
Uploaded by:

