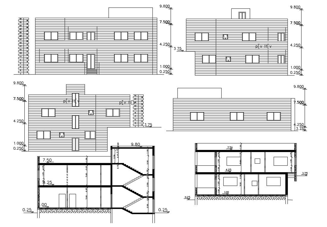
2750 Sq Ft House Building Sectional Elevation Design
Description
2 CAD drawing of 5 BHK architecture house building sectional and elevation design which shows a number of the different angle design. Download 55 feet width and 50 feet depth of 2 storey house building design DWG file.
Uploaded by:
