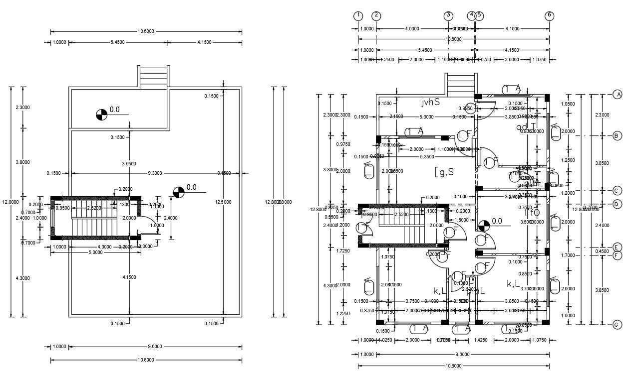
32' X 40' Plot Size For House Plan( 142 Square Yards)
Description
Autocad drawing of a house shows Architectural Floor Layout Plan of 2 BHK house in plot size 32 feet by 40 feet. Drawing accommodates ground and terrace floor plan with the 142 Square Yards plot Size. Download 1280 sq ft plot size house plan a collection of fabulous ideas that would serve as a good source for CAD presentation.
Uploaded by:

