1280 Sq Ft Plot Size House Building Design DWG File
Description
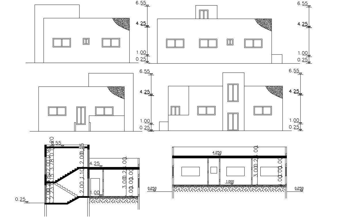
2d CAD drawing of architecture building elevation design and section drawing which shows a number of views. download 32 feet width and 40 feet depth of single storey house building design DWG file.
Uploaded by:

