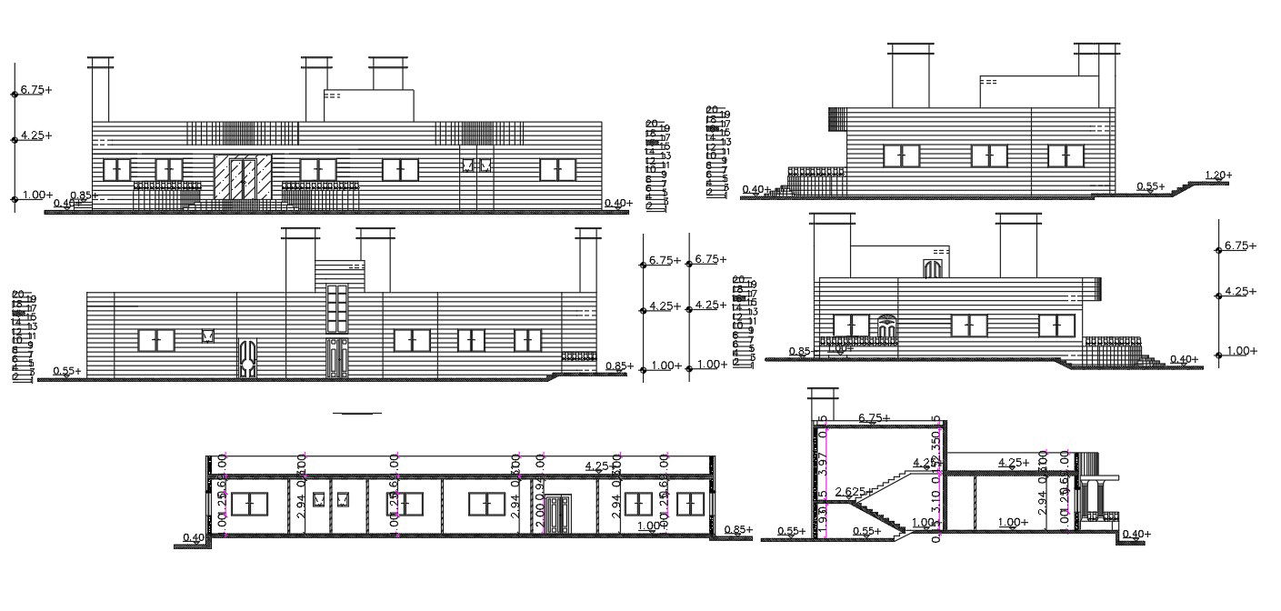
4400 Sq Ft House Building Sectional Elevation Design
Description
4400 Sq Ft House building sectional elevation design that shows all sise view that shows a single storey floor level with dimension detail. download architecture porch house building design DWG file.
Uploaded by:

