3 Bedroom House Plan With Complete Drawing DWG File

3 Bedroom House Plan With Complete Drawing DWG File
Profile

Uploaded by:

Komal

Description
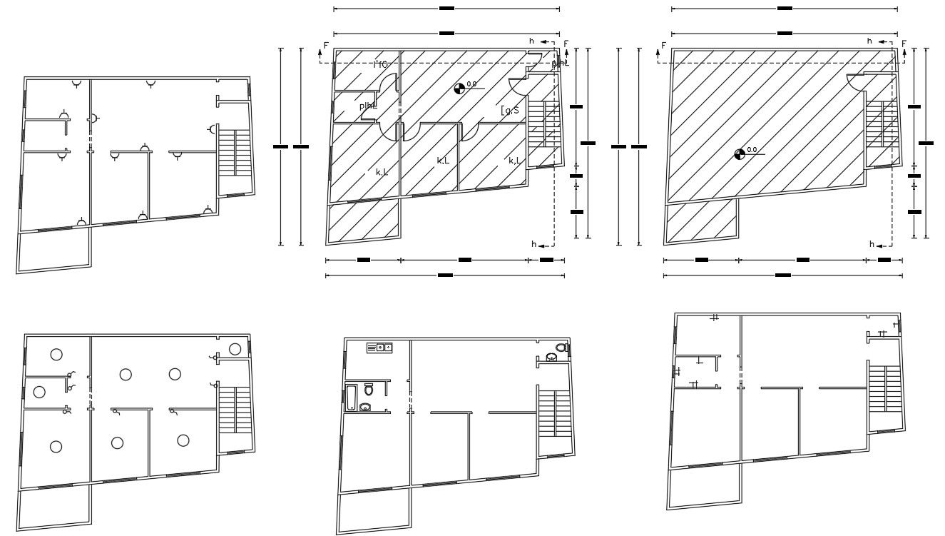
This 3 bedroom house floor plan AutoCAD drawing includes electrical layout and sanitary ware detail. download DWG file 3 BHK house project drawing has been AutoCAD format.
Profile

Uploaded by:

Komal

find Latest

Related Files

WhatsApp Chat