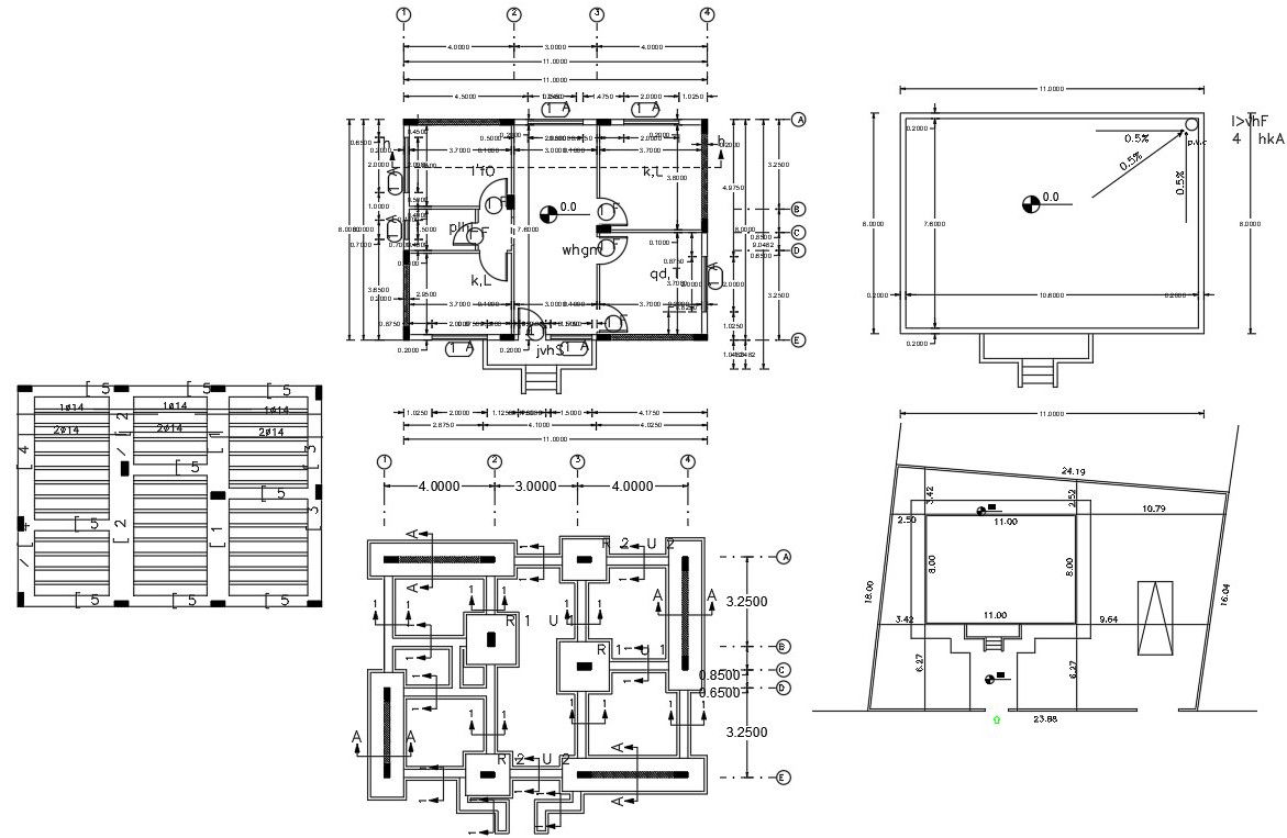
26' X 36' Plot Size 2 BHK House Plans
Description
2d CAD drawing of 26 by 36 feet plot size for architecture house ground floor plan design includes 2 bedrooms, kitchen, drawing and living area with all dimension detail. house construction working foundation plan and slab bar with ground floor 1 big car parking space. download house master plan design DWG file.
Uploaded by:

