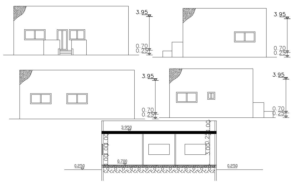
963 Sq FT House Building Sectional Elevation Design
Description
2d CAD drawing of single storey house building section drawing and elevation design with dimension detail. Download 36 feet width and 26 feet depth of single storey house building design free DWG file.
Uploaded by:
