Shop With House Construction And Electrical Layout Plan
Description
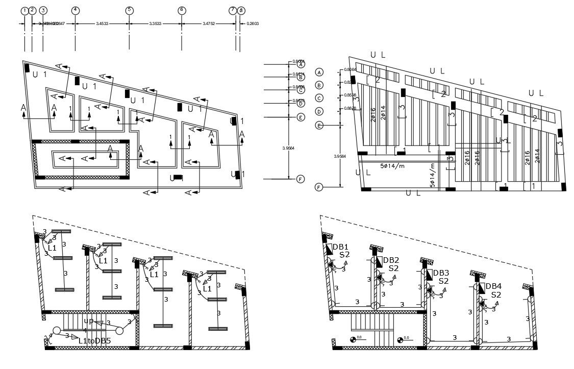
2d CAD drawing of shop on the ground floor and first floor 2 BHK residence house plan construction working plan includes foundation with slab bar and electrical layout plan design. download DWG file of the shop with house project.
Uploaded by:

