Shop With House Floor And Foundation Plan DWG File
Description
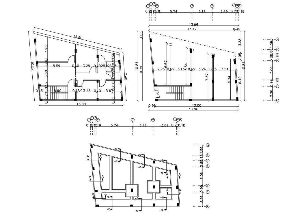
2d CAD drawing of the shop on the ground floor and first floor 2 BHK residence house layout plan with column and foundation plan with excavation detail. download DWG file of the retail shop with top floor house and get more detail of dimension in meter format.
Uploaded by:
