30 By 52 Feet House Plumbing Plan Design DWG File
Description
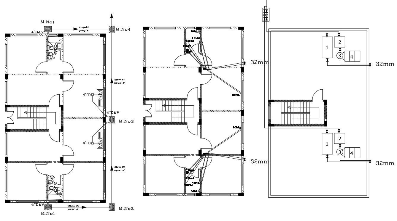
Architecture typical apartment house plumbing plan design includes pipe connection with bathroom and kitchen also has a chamber box that directly connected to a public manhole and 32 mm water meter on the terrace floor. download DWG file of apartment plumbing plan design DWG file.
Uploaded by:

