2 BHK Apartment Typical Floor Electrical Layout Plan Drawing
Description
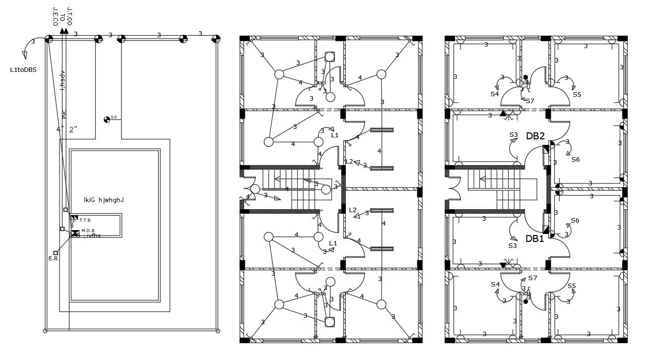
2d CAD drawing of 2 BHK typical apartment floor plan design includes wiring plan, ceiling light point, and switchboard wire connection detail. download the house apartment electrical layout plan with column detail.
Uploaded by:

