G + 1 House Floor Plan Design DWG File

G + 1 House Floor Plan Design DWG File
Profile

Uploaded by:

Komal

Description
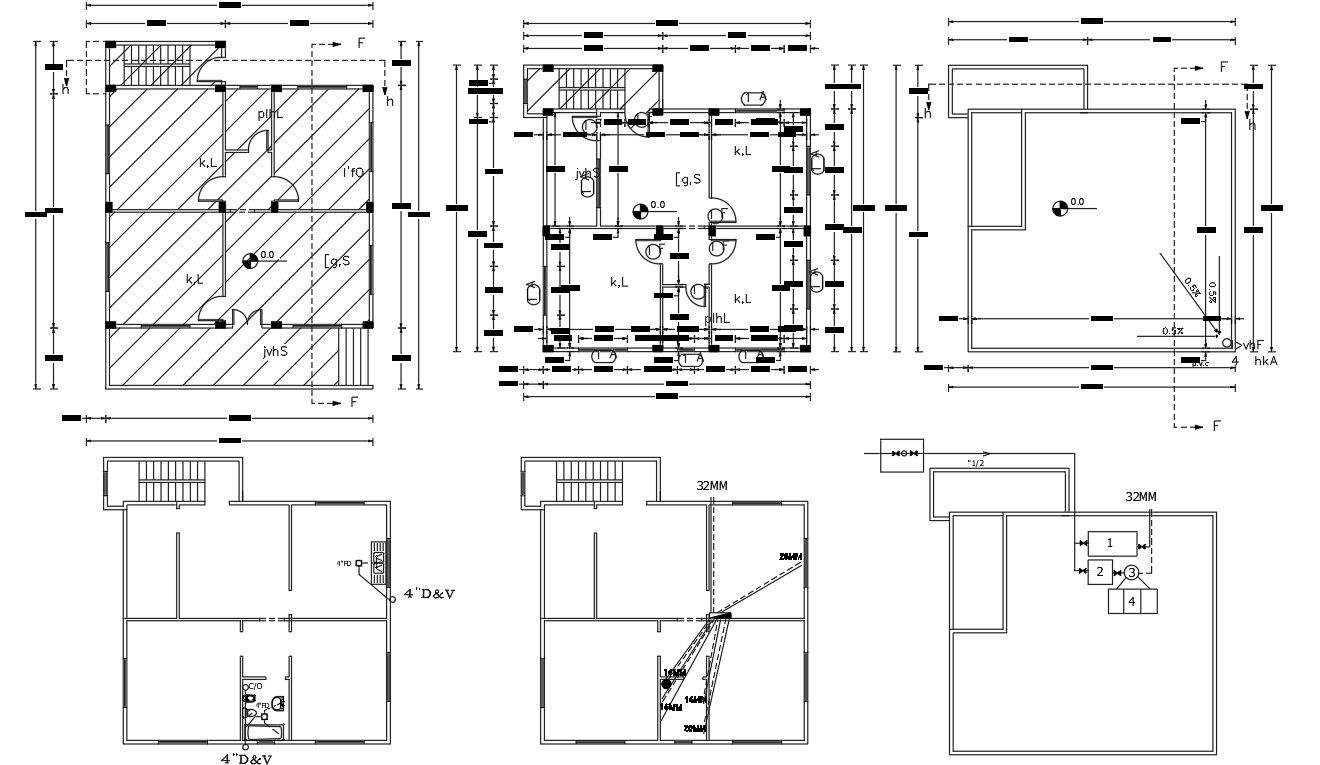
The ground floor and first-floor plan design include 5 bedrooms, kitchen, drawing, and living room with all dimension detail. download 5 BHK house with plumbing plan design.
Profile

Uploaded by:

Komal

find Latest

Related Files

WhatsApp Chat