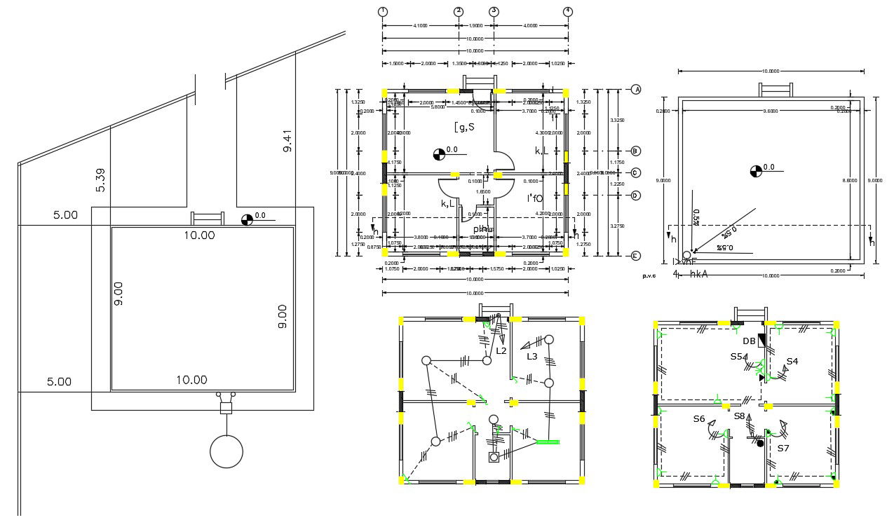
30' X 32' Plot Size For House Plan Design (107 Square Yards)
Description
The House ground floor plan design includes 2 bedrooms, kitchen, and drawing room with column layout, electrical plan and terrace floor plan. download 30 Feet by 32 Feet plot house with master plan design.
Uploaded by:

