30 X 32 Feet House Construction Plan AutoCAD Drawing
Description
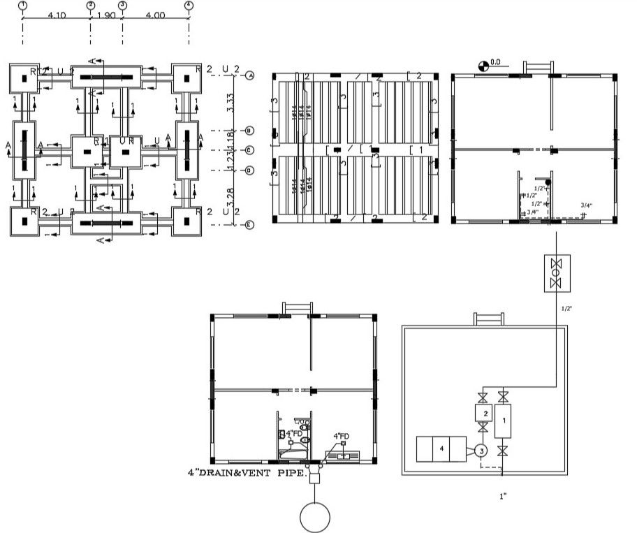
2d CAD drawing of 960 sq ft plot size for house construction plan includes foundation plan, reinforcement slab bar and plumbing detail. download free DWG file of house working plan design.
Uploaded by:

